Ductwork Isometric Example

Isometric duct design helps visualize the system

Another Duct Isometric

Isometric duct design helps visualize the system

Electrical Power Wiring

Electrical Power Drafting

Lighting Plans

Electrical Lighting Plans

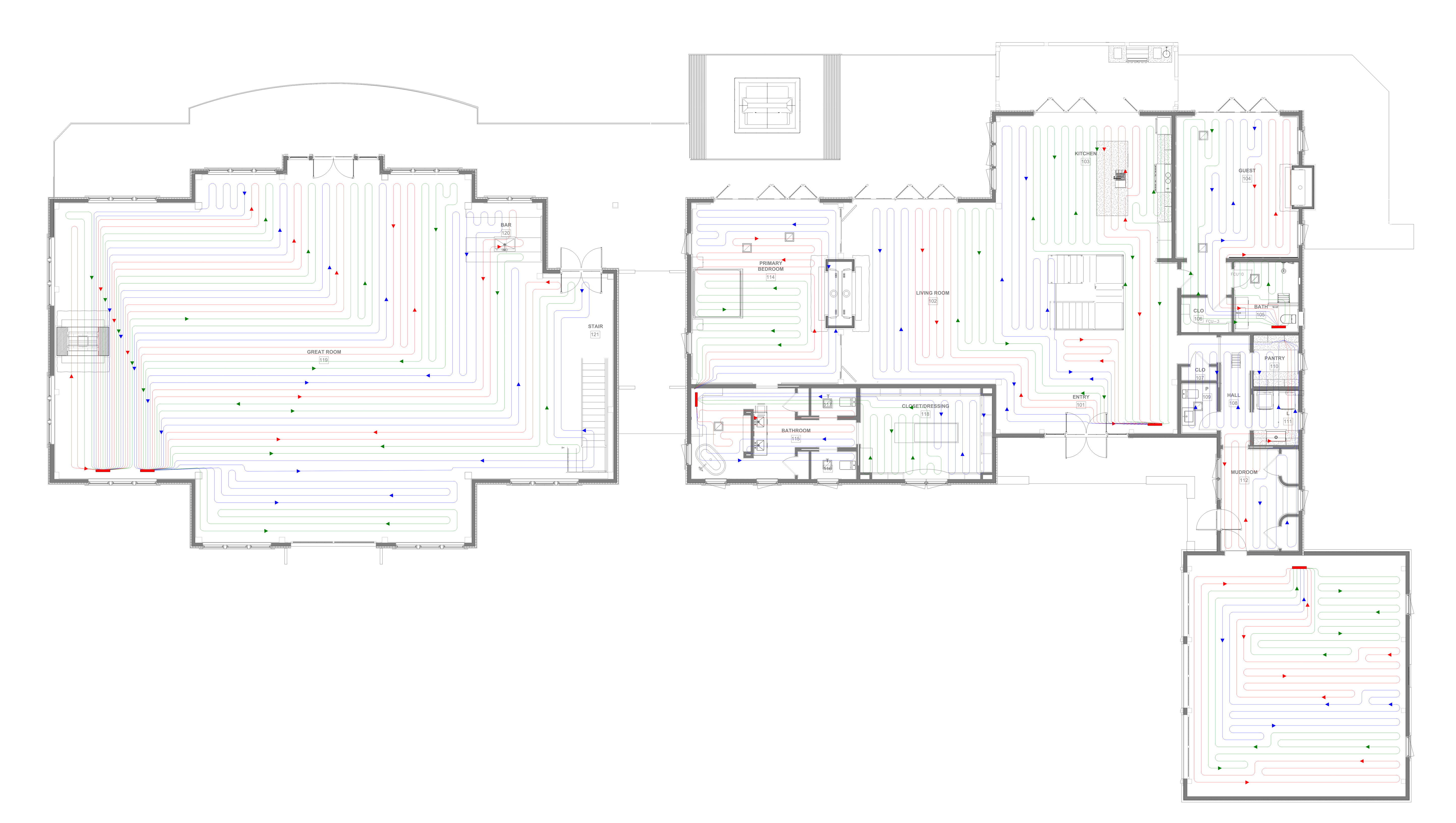
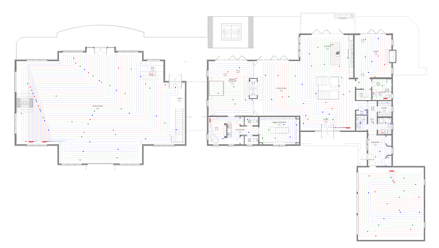
Radiant Heating

Radiant heat layout